Rekonstrukce Rodinný dům
















































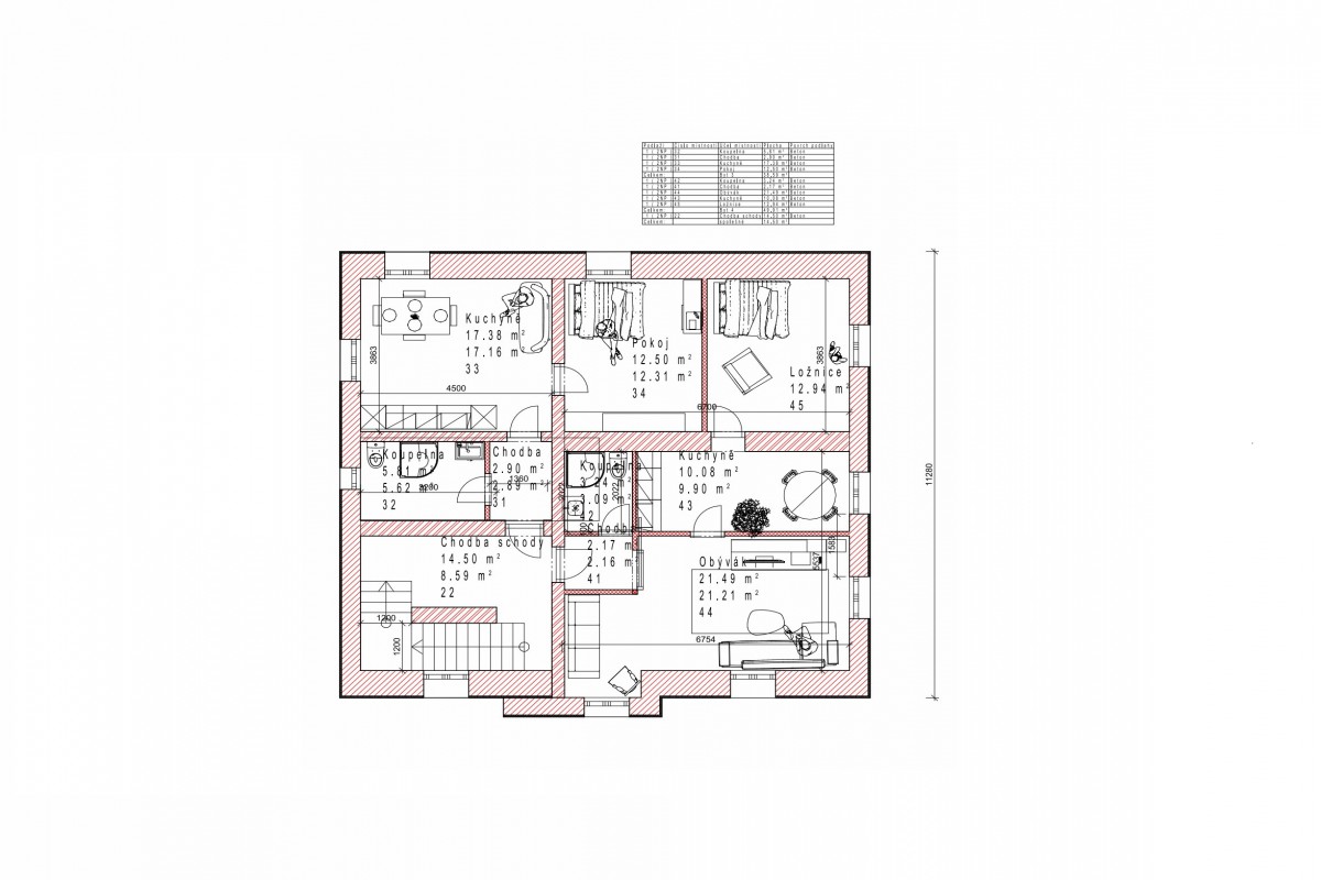
Pro soukromého investora jsme zajišťovali rekonstrukci rodinného domu (budova bývalé evangelické školy) v Jihomoravském kraji. Jednalo se o rozsáhlou vnitřní rekonstrukci, kdy bylo nutné udělat kompletní rozvody elektřiny, vody, odpadů, dále omítky, snížení stropů, výměna oken a dveří, vybudování 4 sociálních zařízení a kompletní uvedení stavby do provozu. Za pomocí subdodavatelů a prověřených řemeslníků jsme úspěšně veškeré interiérové práce zvládli v termínu a majitel mohl objekt začít úspěšně pronajímat. Poslední prací která je plánována na jaro 2021 je zateplení, nová fasáda a drobné terénní úpravy.
Na tomto projektu se podařilo zužitkovat dlouhodobě nevyužitou stavbu za účelem vytvoření nízkonákladového bydlení pro různé věkové kategorie.
Vzniklé bytové jednotky jsou neustále obsazeny nájemníky a majitel investor zvažuje duplikaci v obdobném projektu.